|
|

|
Porsche, and the Porsche crest are registered trademarks of Dr. Ing. h.c. F. Porsche AG.
This site is not affiliated with Porsche in any way. Its only purpose is to provide an online forum for car enthusiasts. All other trademarks are property of their respective owners. |
|
|
| jmill |
Aug 4 2010, 04:25 PM
Post
#1
|
|
Green Hornet ![]() ![]() ![]() ![]() Group: Members Posts: 2,449 Joined: 9-May 08 From: Racine, Wisconsin Member No.: 9,038 Region Association: Upper MidWest |
I'm hoping some one has a pdf of the oil tank dimensions. I want to build one like brant. Heck I'll send him a pm and see if he has them. If you've built your own or have the dimensions feel free to post them. Pics are good.
|
![]() ![]() |
| jmill |
Aug 7 2010, 11:15 AM
Post
#2
|
|
Green Hornet ![]() ![]() ![]() ![]() Group: Members Posts: 2,449 Joined: 9-May 08 From: Racine, Wisconsin Member No.: 9,038 Region Association: Upper MidWest |
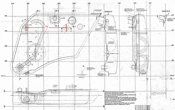
Can someone out there please get a center to center measurement of the mounting bolts. If the lines are indeed 100mm the print is @ 95% as downloaded. I've blown up the picture to have the horizontal grid lines = 100mm. Unfortunately the vertical grid lines are all over the map from 103 to 95 mm. If I can get this measurement I can build the tank.
On a side note the vertical grid lines give you the horizontal measurements and the horizontal give you the vertical. Attached image(s)
|
jmill 914/6 Oil Tank Dimensions Aug 4 2010, 04:25 PM
patssle I'd take one too...if its a bit cheaper than t... Aug 4 2010, 04:37 PM
SirAndy Anybody know why dwdesignwerks stopped making the ... Aug 4 2010, 04:40 PM
jmill This is where I saw his tank. It's sweet... Aug 4 2010, 04:51 PM
jmill Drawings found on this thread!!! Does... Aug 4 2010, 06:41 PM
rick 918-S I boosted these photos from someplace... :confused... Aug 4 2010, 07:22 PM
rick 918-S How much do the filter consoles and filler necks c... Aug 4 2010, 07:28 PM
Dr Evil I was looking at this and wondering, why is it nec... Aug 4 2010, 07:33 PM
rick 918-S
I was looking at this and wondering, why is it ne... Aug 4 2010, 07:39 PM
BigD9146gt Mike, your spot on. There is no reason but compact... Aug 4 2010, 07:45 PM
Dr Evil
Mike, your spot on. There is no reason but compac... Aug 4 2010, 07:51 PM
Dr Evil But the aluminum tank still keeps the plumbing wit... Aug 4 2010, 07:50 PM
BigD9146gt Thanks for the props Mike. My ultimate 914-6 tank ... Aug 4 2010, 10:55 PM
Jeffs9146
Since we have two threads going here is the phot... Aug 5 2010, 12:13 AM
Jeffs9146 another Aug 5 2010, 12:21 AM
jmill Sir Andy, links are dead. Do you still have this ... Aug 5 2010, 01:16 PM
SirAndy Sir Andy, links are dead.
No idea what happened to... Aug 5 2010, 01:35 PM
SirAndy Sir Andy, links are dead
Ok, i found a old backup ... Aug 6 2010, 12:41 AM
brant The aluminum tank is mine. I built it as a weldin... Aug 5 2010, 01:27 PM
9146986 I have a good friend that has a stainless fabricat... Aug 5 2010, 04:21 PM
jmill If someone can come up with the print you might wa... Aug 5 2010, 06:11 PM
sixnotfour
Thats what steve peters was going to do. Aug 5 2010, 08:17 PM
John I tried uploading a 22MB file a few times, but it ... Aug 5 2010, 10:17 PM
John more Aug 5 2010, 10:18 PM
John more Aug 5 2010, 10:19 PM
John more Aug 5 2010, 10:20 PM
Porscheman912
I'm hoping some one has a pdf of the oil tank... Aug 5 2010, 11:31 PM
jmill Thanks Andy. Having build many aircraft parts usi... Aug 6 2010, 09:19 AM
9146986 So was there a baffle, or some tube arrangement in... Aug 7 2010, 12:50 PM
BigD9146gt
So was there a baffle, or some tube arrangement i... Aug 7 2010, 06:28 PM
McMark John, all 914 chassis are stamped with the 'bo... Aug 7 2010, 12:55 PM
Eric_Shea
John... you can get that measurement from the in... Aug 7 2010, 03:42 PM
Mark Henry Keep us updated as I will also be building a tank.... Aug 11 2010, 06:11 AM
9146986 Mark Stephens High Performance tried to make fiber... Aug 11 2010, 11:57 AM
McMark The toughest issue (IMHO) with a fiberglass tank w... Aug 11 2010, 06:30 PM
jmill Mild steel would be the easiest to build. You can... Aug 11 2010, 06:52 PM
rick 918-S
Mild steel would be the easiest to build. You ca... Aug 11 2010, 07:49 PM
Mark Henry I had a buddy (dead...the nerve) who restored engl... Aug 11 2010, 10:39 PM
rick 918-S
What thickness of aluminum would you use Rick?
... Aug 12 2010, 05:16 PM
Dr Evil Cow magnets? Why would you want to attract cows? Aug 12 2010, 10:09 AM
Mark Henry
Cow magnets? Why would you want to attract cows?
... Aug 12 2010, 01:41 PM![]() ![]() |
|
Lo-Fi Version | Time is now: 2nd April 2026 - 04:38 PM |
| All rights reserved 914World.com © since 2002 |
|
914World.com is the fastest growing online 914 community! We have it all, classifieds, events, forums, vendors, parts, autocross, racing, technical articles, events calendar, newsletter, restoration, gallery, archives, history and more for your Porsche 914 ... |