|
|

|
Porsche, and the Porsche crest are registered trademarks of Dr. Ing. h.c. F. Porsche AG.
This site is not affiliated with Porsche in any way. Its only purpose is to provide an online forum for car enthusiasts. All other trademarks are property of their respective owners. |
|
|
![]() ![]() |
| michel richard |
Jan 31 2006, 10:09 PM
Post
#1
|
|
Senior Member ![]() ![]() ![]() Group: Members Posts: 1,291 Joined: 22-July 03 From: Longueuil, Québec Member No.: 936 |
With SirAndy's help, I have uploaded a couple of versions of the factory drawings for the /6 oil tank.
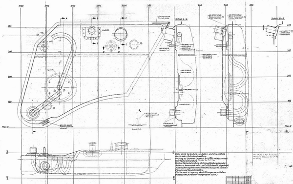
I have a copy that was made by the factory from a database of digitized drawings. The copy that I have is pretty big, not in front of me, but something like 3 feet by 4 feet. It shows the tank full size. I had it scanned, and I got three files, two of which I uploaded: a 22meg pdf and a 7 meg (approx) Jpeg. Here's the pdf link: http://www.914world.com/videos/plan.pdf and the Jpeg: http://www.914world.com/videos/plan.jpg Big files of course. If someone is able to reduce one of them to make it easier for those who don't have the latest connections, please do so. The third file is a .psd extension. Dunno what that is, but it's 48 meg ! Michel Richard |
| sixnotfour |
Jan 31 2006, 10:36 PM
Post
#2
|
|
914 Wizard ![]() ![]() ![]() ![]() ![]() ![]() ![]() ![]() ![]() ![]() Group: Members Posts: 11,184 Joined: 12-September 04 Member No.: 2,744 Region Association: NineFourteenerVille
|
Michel, those are top secrect porsche 914-6 files, not meant for the masses.
Thanks for sharing |
| SLITS |
Jan 31 2006, 10:40 PM
Post
#3
|
|
"This Utah shit is HARSH!" ![]() ![]() ![]() ![]() ![]() ![]() ![]() ![]() ![]() ![]() Group: Benefactors Posts: 13,602 Joined: 22-February 04 From: SoCal Mountains ... Member No.: 1,696 Region Association: None |
*.psd files are Adobe Photoshop
|
| 736conver |
Feb 1 2006, 12:50 AM
Post
#4
|
|
Advanced Member ![]() ![]() ![]() ![]() Group: Members Posts: 2,117 Joined: 25-May 03 From: SE Wisconsin Member No.: 736 Region Association: None |
If you dont want to wait here's the first file.
Attached image(s)
|
| davep |
Feb 1 2006, 10:01 AM
Post
#5
|
||
|
914 Historian ![]() ![]() ![]() ![]() ![]() Group: Benefactors Posts: 5,359 Joined: 13-October 03 From: Burford, ON, N0E 1A0 Member No.: 1,244 Region Association: Canada |
I converted the jpg to greyscale and saved it. Down to 2mb or so. When working with B/W images the 24 bit color setting is very wasteful. It may be possible to save as lineart (1 bit) but it would best be done working with the original scanned image. Then compare to see if anything is lost. Perhaps get higher resolution without the huge file size. |
||
| smontanaro |
Feb 2 2006, 10:33 PM
Post
#6
|
|
Senior Member ![]() ![]() ![]() Group: Members Posts: 1,190 Joined: 3-June 05 From: Evanston, IL Member No.: 4,197 Region Association: Upper MidWest |
I haven't the slightest idea how to upload files here, but I messed around with the JPG a bit, converted it to PNG, scaled, yadda, yadda, yadda. Came up with oil tank. Final size is around 770k (~ 90% reduction).
Cheers, Skip Montanaro |
| jonwatts |
Feb 3 2006, 12:20 AM
Post
#7
|
|
no rules, just wrong ![]() ![]() ![]() ![]() Group: Benefactors Posts: 2,321 Joined: 13-January 03 From: San Jose, CA Member No.: 141 |
Looks like a map of the underground facility where they took #4
(IMG:http://www.914world.com/bbs2/html/emoticons/ph34r.gif) |
| SirAndy |
Feb 3 2006, 01:08 AM
Post
#8
|
||
|
Resident German ![]() ![]() ![]() ![]() ![]() ![]() ![]() ![]() ![]() ![]() ![]() ![]() ![]() ![]() ![]() ![]() ![]() ![]() ![]() ![]() ![]() ![]() ![]() ![]() ![]() Group: Admin Posts: 42,469 Joined: 21-January 03 From: Oakland, Kalifornia Member No.: 179 Region Association: Northern California |
oh, did you upload the PSD as well ??? (IMG:http://www.914world.com/bbs2/html/emoticons/idea.gif) Andy |
||
| michel richard |
Feb 3 2006, 03:03 AM
Post
#9
|
|
Senior Member ![]() ![]() ![]() Group: Members Posts: 1,291 Joined: 22-July 03 From: Longueuil, Québec Member No.: 936 |
|
| brer |
Feb 3 2006, 11:37 AM
Post
#10
|
|
Advanced Member ![]() ![]() ![]() ![]() Group: Members Posts: 2,555 Joined: 10-March 05 From: san diego Member No.: 3,736 Region Association: None |
if i find the time i'll put it into CAD.
maybe even 3D for kicks |
![]() ![]() |
|
Lo-Fi Version | Time is now: 2nd April 2026 - 04:37 PM |
| All rights reserved 914World.com © since 2002 |
|
914World.com is the fastest growing online 914 community! We have it all, classifieds, events, forums, vendors, parts, autocross, racing, technical articles, events calendar, newsletter, restoration, gallery, archives, history and more for your Porsche 914 ... |